47-Places Childcare in Dorset Rd, Boronia (STCA) for Lease
47-Place Childcare Opportunity - Dorset Rd, Boronia (STCA) for Lease
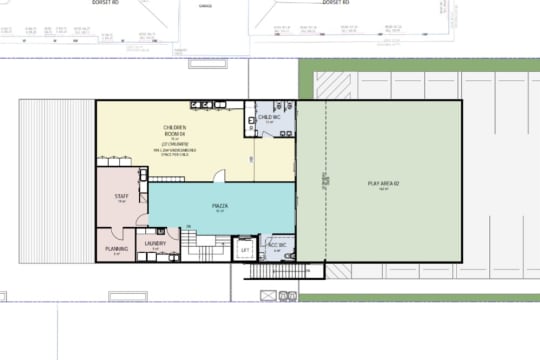
Purpose-Built Single-Level Facility in a Prime Family Location
An exceptional opportunity to secure a proposed 47-place childcare centre (STCA) on Dorset Road in Boronia. Positioned within a thriving residential catchment and surrounded by five primary schools, this site offers an ideal foundation for experienced operators looking to establish or expand their portfolio.
This is a greenfield childcare site - the centre is not yet built. The developer is seeking an experienced childcare operator to come on board as the incoming tenant. A Childcare Approved Provider is required.
Designed as a single-level building, the centre will provide all learning and play areas on one level - offering optimal supervision, streamlined management, and operational efficiency.
With a proposed capacity of 47 places, the centre is intentionally designed as a boutique-sized service, creating a warm, family-focused environment that supports quality education and personalised care. The developer recognises the increasing market demand for smaller-format childcare services and is proud to present this brand new opportunity.
Key Features (Proposed)
47 childcare places (STCA)
Generous 1,015m landholding
481m total building area
Single-level design - all children on one level
4 dedicated children's rooms
Spacious outdoor play area
12 on-site car parks
Fully equipped kitchen
Staff room & planning room
Laundry facilities
Permit Status Update
The childcare planning permit application is currently in progress, with approval expected to be granted soon. This provides incoming operators with greater certainty while still allowing alignment with their operational model and fit-out preferences.
Located in a tightly held childcare precinct with strong local demand from growing families, this is a rare opportunity to secure and shape a purpose-built service from the ground up.
Ideal for established operators seeking a strategic, boutique-scale centre in a high-demand location.
Contact us today to arrange a confidential discussion:
Camil Talj
Phone:
Email:
Gabrielle Zhang
Phone:
Email:
Office:
DISCLAIMER:
Mercury Business Sales and Valuation and/or their agents, for themselves and for the vendor of this business for whom they act give notice that (i) All information given in relation to this business, whether contained in this document or given orally, is given without responsibility, (ii) Intending purchasers should satisfy themselves as to the accuracy or truth of all information given by their own inspections, searches, inquiries, advices or as is otherwise necessary. (iii) No person in the employment Mercury Business Sales and Valuation has any authority to make or give any representation or warranty.
PLEASE NOTE: Any images relating to this business are indicative only
By sending an enquiry to Mercury Business Sales and Valuation you agree to be marketed to in the future for similar businesses through email alerts/SMS messages. This is at NO COST to you and at any time you wish to cancel your subscription please simply unsubscribe it. http://www.consumer.vic.gov.au/duediligencechecklist
For more details, please email broker or call agents.





