100-Places Childcare in Broadmeadows for Lease
100-Place Childcare for Lease - Permit Approved, Ready to Build
Address: 271-273 Camp Road, Broadmeadows VIC 3047
An outstanding opportunity to secure a permit-approved 100-place childcare centre in Broadmeadows - one of Melbourne's rapidly expanding northern growth corridors.
This is a ready-to-develop project, ideal for experienced operators or investors looking to establish a strong presence in a high-demand, undersupplied market, with a reported demand ratio of 3.77.
With approvals already in place, this opportunity significantly reduces timeframes and risk, allowing you to move forward with construction and capture unmet demand upon completion.
Key Highlights:
Approved permit for 100-place childcare centre - ready to build
Efficient single-level architectural design
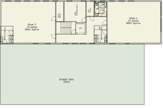
5 dedicated rooms + 1 cot room
Expansive 325 sqm outdoor deck/play area
Generous total building area of 687 sqm
21 on-site car parks for staff and families
Site perimeter of 121m
Located in a fast-growing northern suburb with strong population growth and increasing young families
High demand ratio of 3.77 indicating significant undersupply
This is a rare chance to secure a shovel-ready childcare project in a high-growth location without the delays and uncertainty of the planning phase.
Opportunities like this-approved, well-designed, and positioned in undersupplied markets-are highly sought after and rarely available.
Contact us to arrange a confidential discussion:
Camil Talj
Gabrielle Zhang
Office:
DISCLAIMER:
Mercury Business Sales and Valuation and/or their agents, for themselves and for the vendor of this business for whom they act give notice that (i) All information given in relation to this business, whether contained in this document or given orally, is given without responsibility, (ii) Intending purchasers should satisfy themselves as to the accuracy or truth of all information given by their own inspections, searches, inquiries, advices or as is otherwise necessary. (iii) No person in the employment Mercury Business Sales and Valuation has any authority to make or give any representation or warranty.
PLEASE NOTE: Any images relating to this business are indicative only
By sending an enquiry to Mercury Business Sales and Valuation you agree to be marketed to in the future for similar businesses through email alerts/SMS messages. This is at NO COST to you and at any time you wish to cancel your subscription please simply unsubscribe it. http://www.consumer.vic.gov.au/duediligencechecklist
For more details, please email broker or call agents.




