Newly Renovated Freehold Opportunity Prime High Street Exposure
Positioned in the heart of New Norfolk's bustling retail strip, this fully renovated commercial property offers the ideal mix of charm, exposure, and functionality.
43 High Street, New Norfolk TAS 7140
Freshly upgraded throughout, the building is perfect for an owner-occupier or savvy buyer looking for a low-maintenance, high-exposure premises in one of Tasmania's fastest-growing regional centres.
Key Features
- Completely renovated interior
- Italian porcelain tile floor,
- Freshly painted
- Updated kitchenette and bathroom.
- Additional hand-wash sink
- NBN connection
- Updated recessed lighting.
- All new marquee signage.
- Prime High Street position excellent foot traffic and visibility
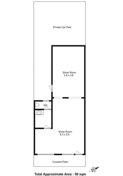
- Building area: approx. 64 m²
- Land area: approx. 190 m²
- Dual access front and rear entry with off-street parking
- Flexible zoning suitable for retail, office, or professional services
- Vacant possession ready for occupation or immediate lease-out
- Potential rental return: $22,000 to $25,000 p.a.
- Indicative yield: 7.3%8.4% based on the asking price of $299,000
Location
High Street is New Norfolk's established retail and business hub, home to cafés, boutiques, and service-based enterprises. The property is within easy walking distance of the town centre, major banks, and amenities, and just 35 minutes from Hobart CBD. The Derwent Valley region continues to attract growth and new residents, underpinning strong long-term demand for well-located commercial assets.
Price
For Sale $299,000 (Vacant Possession)
Ideal For
- Owner-occupiers wanting a professional retail or consulting space
- Property buyers seeking an affordable, high-yield freehold asset
- Buyers seeking exposure in a fast-growing Tasmanian township
To receive a Confidential Information Memorandum, please copy and paste the link below into your web browser, complete the Non-Disclosure Agreement and our brokers will be in touch - https://www.mbs-public.com/public/612ae3c4-76be-48b9-afaf-99c292b5b3fd/ca
Lic #597
DRU
For more details, please email broker or call agents.





