FULLY DA APPROVED SITE LOCATED AT HERVEY BAY AIRPORT - 31DS
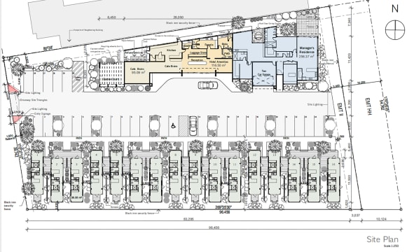
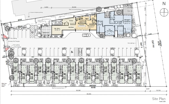
A rare opportunity for developers or commercial investors to secure a significant 4,502m² site in the thriving coastal hub of Urangan, Hervey Bay. Zoned MU2 - Mixed Use, and with an approved Development Application for a boutique hotel and hospitality precinct, this property offers immediate upside and long-term growth potential in one of Queensland’s most active regional markets.
- Development Approval: MCU22/0106 - Fully approved for mixed-use development.
- Site Area: 4,502 m2.
- Zoning: Mixed Use (MU2) – Hervey Bay Airport Business Park.
- Permitted Uses: 16-unit hotel (Alibaba Hotel Suites), Cafe/bistro, VIP function rooms.
- Approval Validity: 6 years (Approved 31/03/2023, Amended 23/01/2024).
- Site Readiness: Cleared, flat, and construction-ready (drawings to be finalised).
- Council Rates: $1,147.94 (for period 01/03/2025 to 30/06/2025).
This is a turnkey opportunity in a fast-growing lifestyle destination with strong demand across tourism, residential, and commercial sectors. Whether you proceed with the approved scheme or explore a new vision (STCA), 1 Southern Cross Circuit offers flexibility, scale, and strategic location in equal measure.
Contact Dale from Tourism Brokers for further information or to arrange an inspection.
Property ID: 31DS (quote when enquiring)
Property Code: 5228
For more details, please email broker or call agents.





